About this floor plan
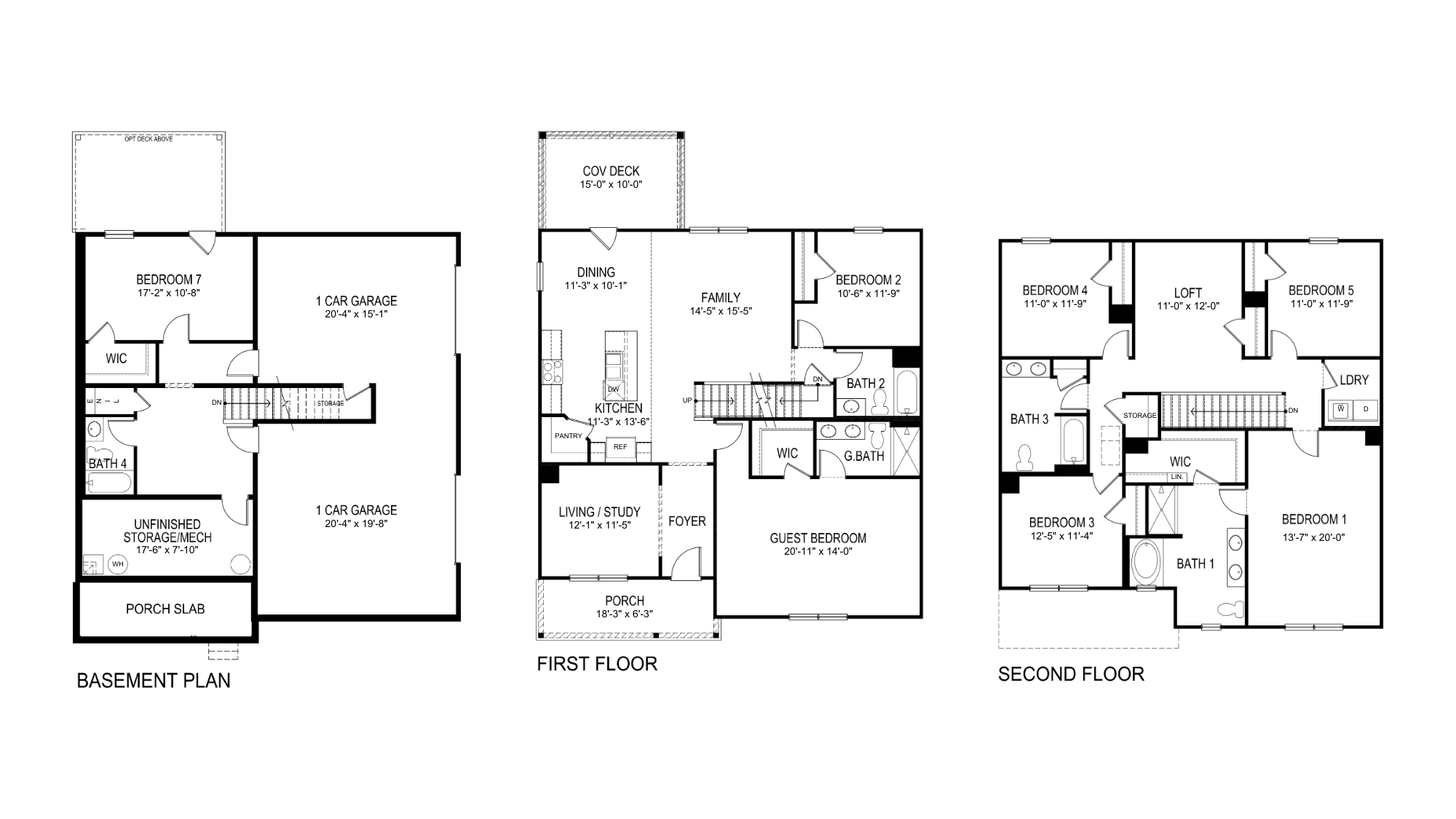
Step into the Burlington floorplan by D.R. Horton, featuring 3,517 square feet spread out across a generous 7 bedrooms and 5 bathrooms on three levels of living space. Entering into the foyer, you are greeted with a study space making for a perfect office, bonus room, or second living area. The open floorplan leads you into a combined family, kitchen, and dining space perfect for entertaining the whole family, The main level features 2 generously sized bedrooms, with two full bathrooms. Down the stairs is a finished basement featuring a bedroom, bathroom and a 2 car garage. This driveway-level bedroom makes for a perfect mother-in-law suite, featuring a walk-in closet and a full bathroom.
Upstairs, on the second story, is 4 total bedrooms, one of them being the primary, two full bathrooms, a loft area, and the laundry room. Throughout this home are quality materials and workmanship, with superior attention to detail, and a one-year builder's warranty provides peace of mind. The home is built using high-quality materials and craftsmanship, with careful attention to detail. It also comes with a one-year builder's warranty for added peace of mind. Additionally, each new home is equipped with a smart home technology package provided by D.R. Horton. This user-friendly package is designed to offer maximum convenience, allowing effortless control of important features with just a simple touch. Included conveniences comprise lighting automation, an IQ panel, a video doorbell, keyless front door entry, and the ability to manage temperature settings directly from your smartphone. We offer the opportunity for you to book a personal guided tour of the Burlington plan at your convenience, so give us a call and make The Burlington your new home today!
Read more about this plan
Facebook LinkedIn Email