About this floorplan
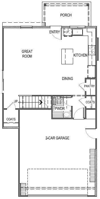
Discover the 1578 Plan at Lucia, an inviting choice for new home buyers seeking comfort and modern amenities. This 1,578 square foot home features three bedrooms and 2.5 bathrooms, ensuring convenience and space for all. Upon entry, guests are greeted by a welcoming front porch leading into an expansive Great Room, perfect for gatherings. The dining room flows seamlessly into the kitchen, equipped with granite countertops, stainless steel Whirlpool appliances including a built-in oven with electric cooktop, microwave/hood combo, and a convenient walk-in pantry for ample storage.
The first floor also includes a coat closet and powder room for added convenience.
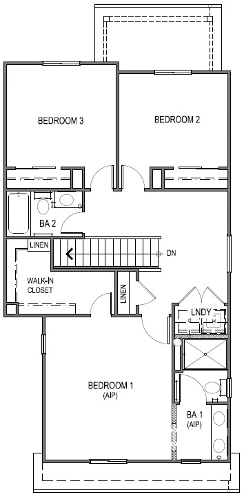
Upstairs, a linen closet with built-in shelving and a laundry room enhances practical living. Two spacious bedrooms share a well-appointed bathroom with a fiberglass tub/shower combo. The primary bedroom suite impresses with a large walk-in closet with built-in shelving and an ensuite bathroom featuring granite countertops, dual sinks, and an elegantly sized shower. All homes at Lucia feature fully fenced backyards, offering privacy and a perfect space for outdoor entertainment. Buyers can select from three distinct elevation styles: Farmhouse, Craftsman, or West Coast. Enjoy the assurance of quality craftsmanship with standard overlay Shaker style cabinets, Mohawk carpet, luxury vinyl plank flooring, and brushed nickel fixtures throughout. This smart home features USB charging outlets in the kitchen, and a Honeywell programmable thermostat for added convenience. Discover the joy of modern living in Lucia’s 1578 Plan, designed for comfort, functionality, and style in every detail.
Read more about this plan
Request information
Facebook LinkedIn Email