Plan 1646 Plan
Tradition Series
SM |
Call for Information
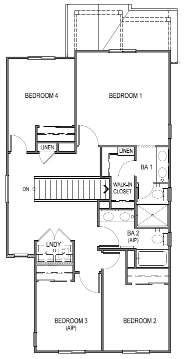
4 Bed |
2.5 Bath |
2 Garage |
2 Story
1,646 Sq. Ft.
About this floorplan
Discover the impressive features of Plan 1646, an ideal home for those seeking comfort and modern amenities. This spacious 1,646 square foot residence offers 4 bedrooms, 2.5 bathrooms, and a 2-car garage across two well-designed stories. Step into the gourmet kitchen featuring Whirlpool stainless steel appliances including a built-in oven with electric cooktop, microwave/hood combo, and built-in dishwasher. Granite countertops with an eased edge and a 4-inch backsplash complement the sleek stainless steel undermount sink with brushed nickel Moen faucet. Elegant Shaker style cabinets provide am
ample storage, perfectly matching the home's stylish aesthetic.
Bathrooms are adorned with brushed nickel fixtures, elongated toilets, and granite countertops matching those in the kitchen. Bath 1 showcases a luxurious brushed nickel framed shower enclosure with E-Stone surround, while Bath 2 features a fiberglass tub/shower combo with a brushed nickel shower rod. Additional highlights include Mohawk carpet, luxury vinyl plank flooring, Deako switches for enhanced electrical control and a Honeywell programmable thermostat for efficient HVAC management. Enjoy the convenience of a downstairs powder room and an upstairs laundry room, alongside a spacious walk-in closet in the primary bedroom suite. Outside, the home is adorned with concrete tile roofing and offers solar capabilities for energy efficiency. Garage door styles vary per elevation, each equipped with a WiFi-enabled garage door opener and a side garage access door with lighting. Plan 1646 at Lucia at Delta Shores combines functionality, style, and contemporary living essentials, making it the perfect choice for new home buyers looking for their dream home.
Read more about this plan
Request information
{"InvalidUserInputMessage":"Please check your data entered again","ServerErrorMessage":"We couldn't share this page via email, try again later","SuccessResultCode":0,"InvalidUserInputResultCode":1,"ServerErrorResultCode":2,"HostName":"http://www.drhorton.com","DefaultPageUrl":"https://www.drhorton.com/california/sacramento/sacramento/lucia/floor-plans/1646","DefaultModalHeader":"Share this property."}
Facebook LinkedIn Email