Plan 1619 Plan
Tradition Series
SM |
Call for Information
4 Bed |
2.5 Bath |
2 Garage |
2 Story
1,619 Sq. Ft.
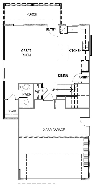
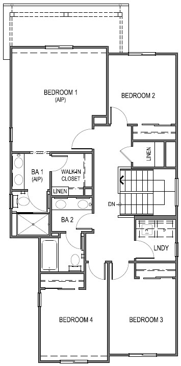
About this floorplan
Explore the exquisite features of Plan 1619, a dream home perfectly designed for comfort and modern living. This spacious 1,619 square foot residence boasts 4 bedrooms, 2.5 bathrooms, and a 2-car garage across two well-appointed stories. Step into luxury with a kitchen equipped with Whirlpool stainless steel appliances including a built-in oven with electric cooktop, microwave/hood combo, and built-in dishwasher, complemented by granite countertops and elegant Shaker style cabinets.
Bathrooms feature brushed nickel fixtures, elongated toilets, and luxurious granite countertops matching the kitchen, with Bath 1 showcasing a brushed nickel framed shower enclosed with E-Stone surround.
The home is meticulously detailed with Mohawk carpet and luxury vinyl plank flooring, plus smart home enhancements like Deako switches, Honeywell programmable thermostat. Enjoy practicality with a laundry room conveniently located upstairs, alongside a spacious walk-in closet and a dual-sink bathroom for added comfort.
Outside, the home features concrete tile roofing and solar capabilities, ensuring energy efficiency and long-term sustainability. Choose from multiple elevation styles and revel in the convenience of a side garage access door with lighting. Plan 1619 at Lucia promises an exceptional living experience, blending style, functionality, and modern amenities perfectly suited for discerning new home buyers.
Read more about this plan
Request information
{"InvalidUserInputMessage":"Please check your data entered again","ServerErrorMessage":"We couldn't share this page via email, try again later","SuccessResultCode":0,"InvalidUserInputResultCode":1,"ServerErrorResultCode":2,"HostName":"http://www.drhorton.com","DefaultPageUrl":"https://www.drhorton.com/california/sacramento/sacramento/lucia/floor-plans/1619","DefaultModalHeader":"Share this property."}
Facebook LinkedIn Email