Zion Floor Plan
starting at $474,990
| Tradition SeriesSM
4 Bed |
3 Bath |
2 Garage |
2 Story
2,075 Sq. Ft.
About this floor plan
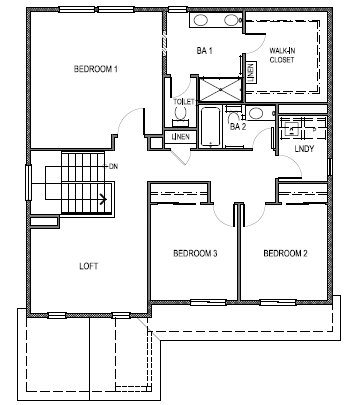
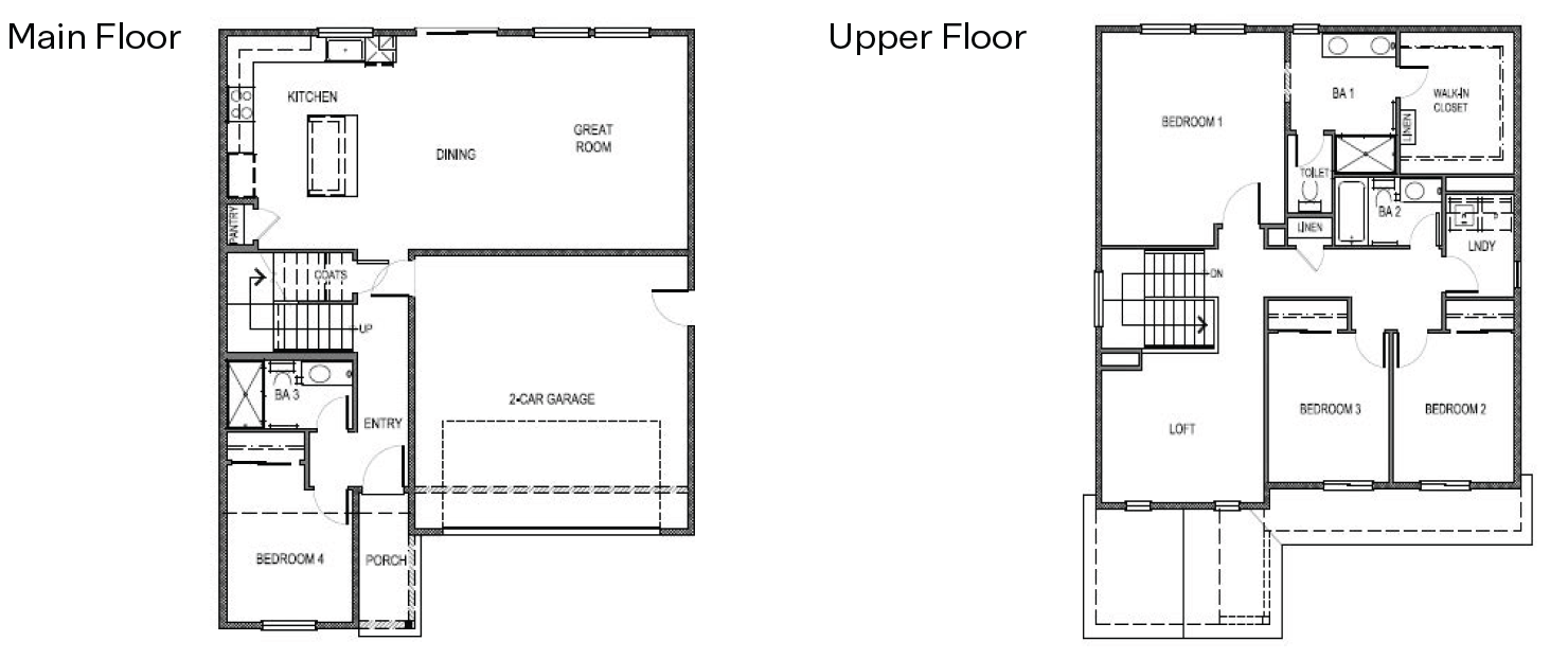
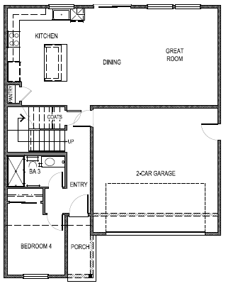
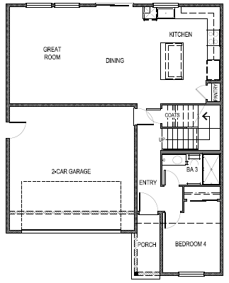
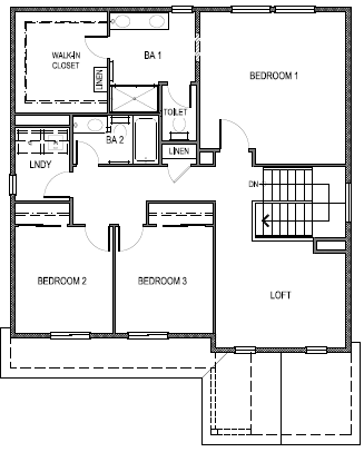
Come see our stunning Zion floorplan at Woodbridge. With four bedrooms, a loft, and three bathrooms, it could be the perfect fit for you. This floorplan covers 2,075 sq. ft. and has an appealing open-concept layout designed to fit your needs. This home has designer-grade features that create a welcoming ambiance, and the 2-car garage ensures plenty of space for vehicles and storage. Entertain in the large, open space living room and beautifully designed kitchen, which features shaker-style cabinetry, quartz countertops, and stainless-steel appliances. Gather around the kitchen island with a built-in sink. On the second floor, you’ll be treated to a loft space just waiting to be turned into a bonus area. The two secondary bedrooms are cozy and carpeted, with plenty of closet space. The laundry room and a secondary bathroom are perfectly placed next to these rooms.
The primary bedroom will make you feel right at home. With an attached primary bathroom, starting your day or winding down will be a breeze. A large walk-in closet ensures plenty of storage space. Every D.R. Horton home has smart home technology built in. You’ll never be far from home when you’re living in the Woodbridge community, from security to control over your energy usage. There’s plenty of space to grow in the Zion floorplan. Contact us to learn more!
Read more about this plan
{"InvalidUserInputMessage":"Please check your data entered again","ServerErrorMessage":"We couldn't share this page via email, try again later","SuccessResultCode":0,"InvalidUserInputResultCode":1,"ServerErrorResultCode":2,"HostName":"http://www.drhorton.com","DefaultPageUrl":"https://www.drhorton.com/nevada/reno/dayton/woodbridge/floor-plans/2075","DefaultModalHeader":"Share this property."}
Facebook LinkedIn Email