Stampede Floor Plan
Call for Information
| Tradition SeriesSM
4 Bed |
3 Bath |
3 Garage |
2 Story
2,425 Sq. Ft.
About this floor plan
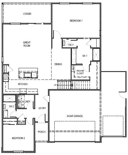
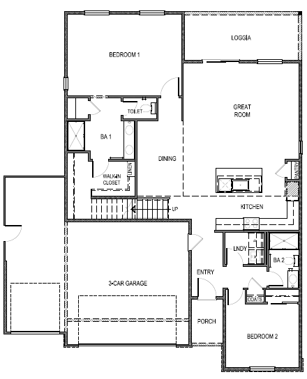
Find all the space you'll need with the Stampede, a two-story floorplan in our Woodbridge community. This home has 4 bedrooms, 3 bathrooms, and 2,168 sq. ft. of modern comfort and functionality. This floorplan also includes a 3-car garage with drive through doors on the third bay with direct access to a generous 12,000 sq. ft. lot. Choose from Farmhouse, Craftsman, or West Coast exteriors. On the first floor, find the open-layout great room, dining area, and kitchen area featuring shaker-style cabinetry and quartz countertops, with a kitchen island that provides extra counter space and a place to gather. You’ll also find a bedroom on the first floor, with easy access to the secondary bathroom.
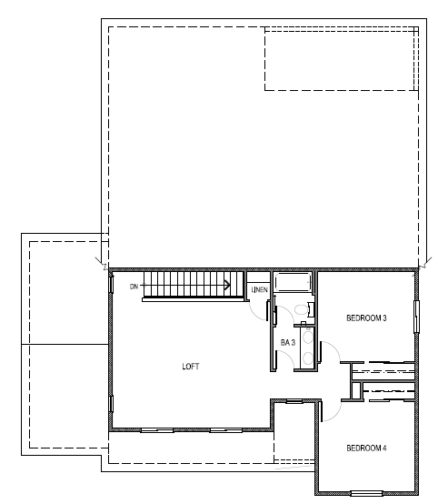
On the second floor, you'll be treated to a loft space just waiting to be turned into a bonus area, conveniently located next to the laundry room. The two upstairs secondary bedrooms are cozy and carpeted, with plenty of closet space.
The primary bedroom will make you feel right at home. With an attached primary bathroom, starting your day or winding down will be a breeze. A large walk-in closet ensures plenty of storage space. The smart home technology integrated into each home means peace of mind at your fingertips. Find security and control through the Qolsys panel, your phone, or voice and when you want to add additional smart home tech, easily integrate with Z-wave or Bluetooth technology. Contact us today and learn more about the Stampede plan at Woodbridge!
Read more about this plan
{"InvalidUserInputMessage":"Please check your data entered again","ServerErrorMessage":"We couldn't share this page via email, try again later","SuccessResultCode":0,"InvalidUserInputResultCode":1,"ServerErrorResultCode":2,"HostName":"http://www.drhorton.com","DefaultPageUrl":"https://www.drhorton.com/nevada/reno/dayton/woodbridge/floor-plans/2425","DefaultModalHeader":"Share this property."}
Facebook LinkedIn Email