Yosemite Floor Plan
starting at $489,990
| Tradition SeriesSM
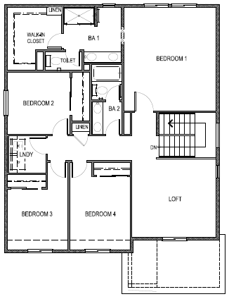
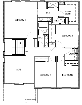
5 Bed |
3 Bath |
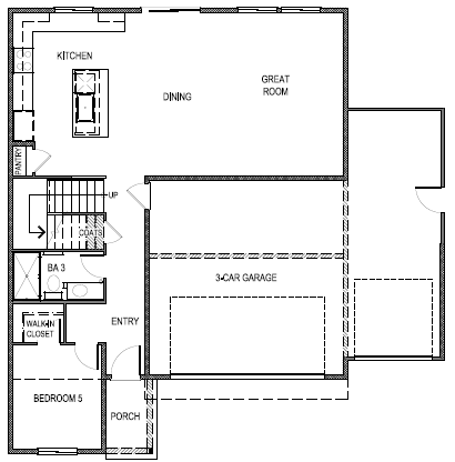
2 Garage |
2 Story
2,311 Sq. Ft.
About this floor plan
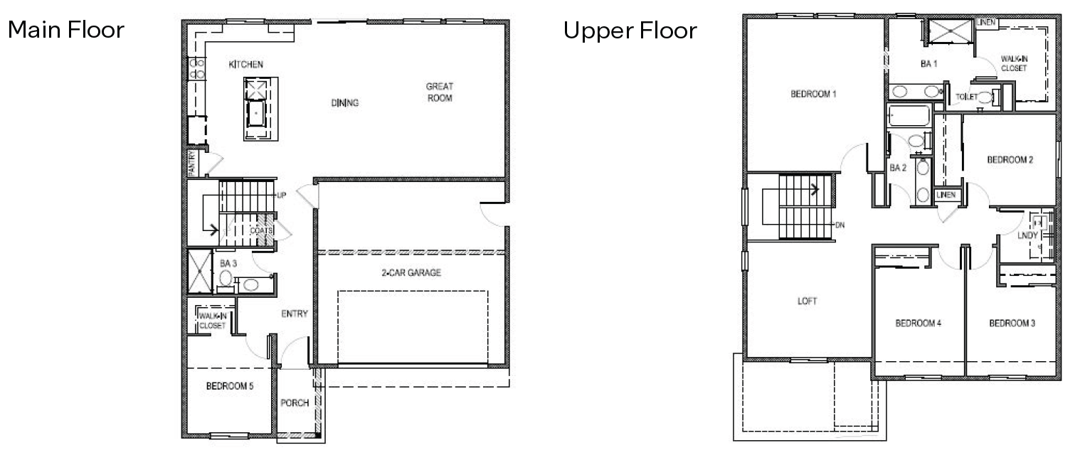
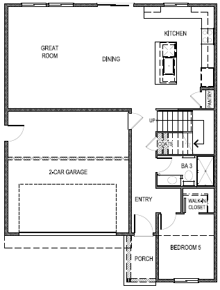
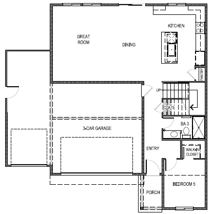
Discover our Yosemite floorplan at Woodbridge, a mixture of modern comfort and style designed with you in mind. This spacious 5 bedroom, 3 bathroom retreat is 2,311 sq. ft., so you’ll have plenty of space for both family and guests. One of our most popular plans, the Yosemite at Woodbridge is offered with two different options: a 2-car garage, or a 3-car garage with drive through doors on the third bay. Entertain in the large, open space living room or gather in the beautifully designed kitchen. The kitchen features shaker-style cabinetry, quartz countertops, and stainless steel appliances. Gather around the kitchen island with a built-in sink.
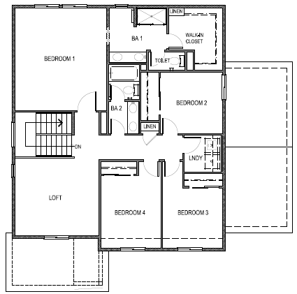
You’ll also find three cozy carpeted secondary bedrooms with easy access to a separate bathroom. The laundry room is also centrally located for convenience. Retreat to the luxurious primary bedroom, where you’ll find the attached primary bathroom with its double vanity and walk-in closet. This floorplan offers plenty of space and includes a smart home package to keep your home connected. Control and secure your home through the Qolsys smart panel, through your phone, or even with your voice. With thoughtful design and functionality, our Yosemite floorplan is contemporary living at its finest. Contact us to learn more about the Yosemite plan.
Read more about this plan
{"InvalidUserInputMessage":"Please check your data entered again","ServerErrorMessage":"We couldn't share this page via email, try again later","SuccessResultCode":0,"InvalidUserInputResultCode":1,"ServerErrorResultCode":2,"HostName":"http://www.drhorton.com","DefaultPageUrl":"https://www.drhorton.com/nevada/reno/dayton/woodbridge/floor-plans/2311","DefaultModalHeader":"Share this property."}
Facebook LinkedIn Email