About this floor plan
Excited to talk new homes?
Text with us
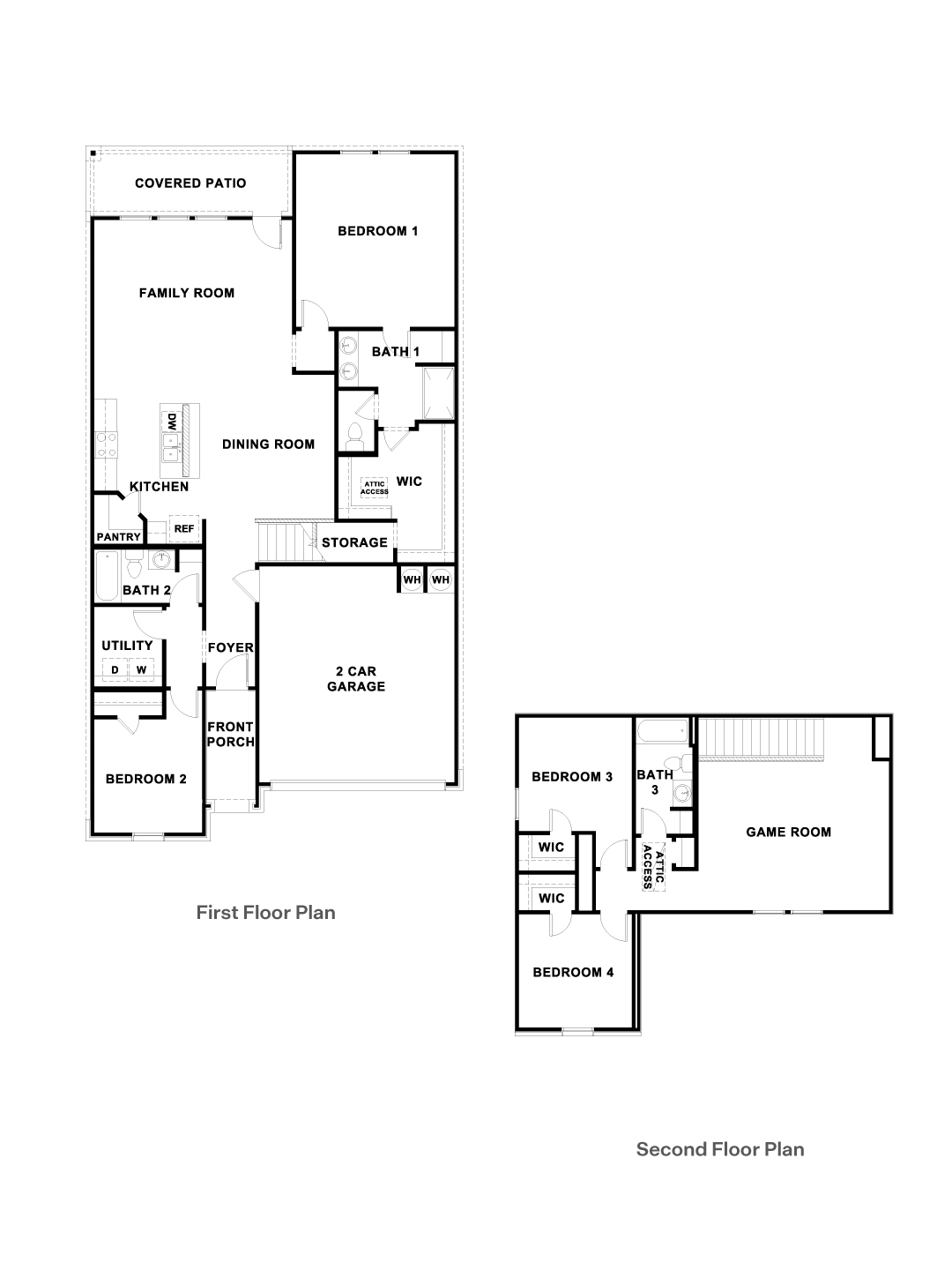
The Mitchell is one of our expansive two-story floorplans featured in our Briarwood community in Elgin, Texas. With 2,251 square feet of comfortable living space, this 4-bedroom, 3-bathroom home is designed for those who need both space and versatility. Your journey begins at the covered front porch, which leads into a welcoming foyer. Immediately to your left, a secluded secondary bedroom and full bathroom offer the perfect setup for guests or a quiet home office. As you move further into the home, the layout expands into open-concept living area. The kitchen comes complete with a walk-in pantry and central island flowing directly into the dining room and living room, creating a central hub for gathering and entertaining.
For ultimate convenience, the primary suite is located on the first floor, tucked away at the rear for maximum privacy. This retreat features a spacious ensuite bathroom and an impressive walk-in closet with direct attic access for extra storage. Just outside the dining area, the covered patio provides a seamless transition to outdoor living in your private backyard. The second floor is dedicated to recreation and relaxation. At the top of the stairs, you are greeted by a massive game room that can serve as a second living area, media room, or play space. Two additional bedrooms are located upstairs, each featuring its own walk-in closet, and they share a well-appointed third bathroom. Completing this 2,251 square foot home is a functional utility room with garage access and our America’s Smart Home® package, featuring a video doorbell, smart lock, smart light switch, and Honeywell thermostat, providing modern comfort, security, and control, whether you’re home or away. Contact us today and find your home at Briarwood.
Read more about this plan
Facebook LinkedIn Email