About this home
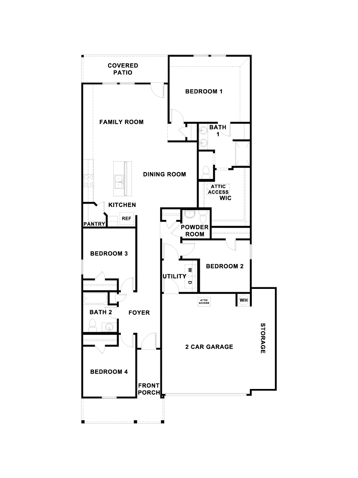
Check out the Harris floorplan, our largest one-story home available at Paramount in Kyle, Texas. 251 Yellowstone Drive is perfect for roommates or larger families, this 4 bedroom, 2.5 bathroom, 2 car garage home offers 1,822 square feet of comfortable living space. Our homes in Paramount feature our modern farmhouse exterior and the Harris plan is available in 2 exterior options. At the front of the home, off the foyer, you have two secondary bedrooms and a full bathroom, which includes a shower/tub combination. Moving through the foyer and down a small hall, you will find the half bathroom, utility room and another secondary bedroom. All secondary bedrooms feature a closet with shelving. Whether you use these rooms as an office, child’s room or guest room, there is plenty of space for work, sleep, and play.
Making your way through the house, you’ll walk into the heart of the home, the living area. Built as an open concept, move easily between the kitchen, dining, and family room. The L-shaped kitchen includes quartz countertops, a large island with undermount sink, a corner pantry closet, stainless-steel appliances and 36’’ upper cabinets. The primary bedroom is located off the family room. This spacious bedroom will be your oasis at the end of a long day. Enjoy the private bathroom, which features a walk-in shower, marble countertops with dual vanity, separate toilet area with a door, and a large walk-in closet. The Harris includes vinyl flooring throughout the common areas of the home and carpet in the bedrooms. All our new homes at Paramount feature extra storage space in the garage, a covered back patio, full sod, and an irrigation system in the front and back yard. This home comes with our America’s Smart Home base package, which includes Video Front Door Bell, Front Door Deadbolt Lock, Home Hub, Thermostat, and Deako® Smart Switches. Contact us today and find your home at Paramount.
Read more about this available home
Facebook LinkedIn Email