About this floor plan
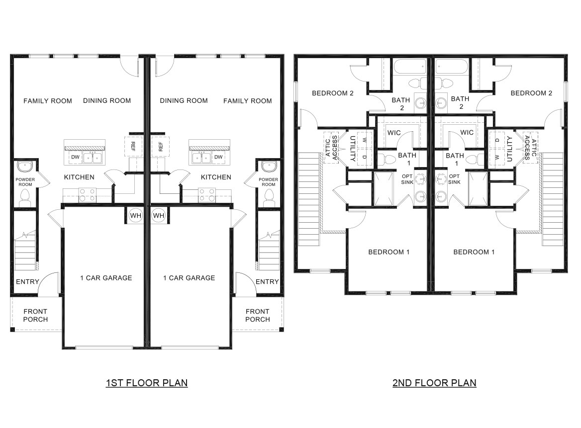
Welcome to Stone Wood, a modern all-electric duplex community located in Sulphur Springs, Texas. The Alexandria floor plan offers a thoughtfully designed two-story layout with 1,075 square feet, 2 bedrooms, 2.5 bathrooms, and a 1-car garage, blending comfort, and functionality. Each unit is sold separately, 2 units per building. The main living level features an open-concept design ideal for both everyday living and entertaining. The spacious family room flows seamlessly into the dining area and gourmet kitchen, complete with quality cabinetry, stainless steel appliances, a smooth cooktop range, dishwasher, garbage disposal, and durable laminated wood plank flooring. A convenient powder bath rounds out this level.
Upstairs, the Alexandria plan provides two private bedrooms with well-appointed bathrooms featuring hard surface vanity countertops, elongated commodes, stylish plumbing fixtures, and non-framed mirrors. Generous closets and smart storage solutions enhance the home’s livability. Each Alexandria home is built with modern efficiency in mind, offering LED lighting throughout, programmable thermostats, smoke detectors with battery backup, fiberglass insulation, and weather-tight construction. Exterior features include a covered front porch, covered patio (per plan), professionally landscaped yard, full sprinkler system, and privacy fencing with gated access. With a low-maintenance design, and a convenient Sulphur Springs location, the Alexandria at Stone Wood delivers stylish duplex living designed for today’s lifestyle. Photos shown here may not depict the specified home and features. Elevations, exterior/ interior colors, options, available upgrades that require an additional charge, and standard features will vary in each community and subject change without notice. Call for details.
Read more about this plan
Facebook LinkedIn Email