Chesapeake Floor Plan
starting at $251,990
| Express Series®
3 Bed |
2.5 Bath |
1 Garage |
2 Story
1,504 Sq. Ft.
About this floor plan
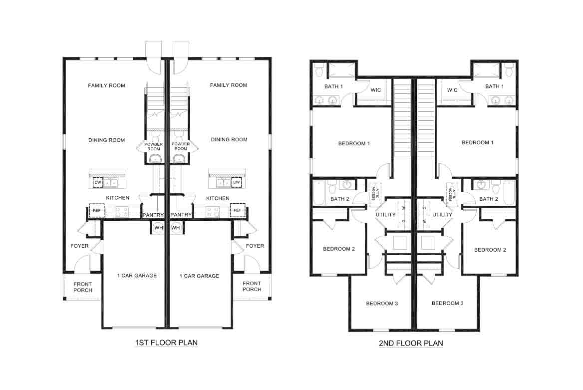
The Chesapeake floorplan in the Stonewood community offers a thoughtfully designed duplex layout that blends functionality, comfort, and modern living. Each residence features a welcoming front porch and a private one-car garage, leading into a spacious foyer and an open-concept first floor. The main level is designed for everyday living and entertaining, with a well-appointed kitchen that includes ample counter space, a pantry, and easy flow into the dining and family rooms. A convenient powder bath on the first floor adds extra comfort for guests, while the open layout creates a bright and inviting atmosphere. Upstairs, the Chesapeake offers a smartly arranged second floor with three generously sized bedrooms. The primary bedroom includes a private bath and walk-in closet, while the additional bedrooms are served by a full secondary bath. A centrally located utility room upstairs provides added convenience for daily routines.
Located in the charming community of Stonewood in Sulphur Springs, the Chesapeake floorplan is ideal for those seeking low-maintenance living with thoughtful design, modern features, and a comfortable layout that fits a variety of lifestyles. Photos shown here may not depict the specified home and features. Elevations, exterior/ interior colors, options, available upgrades that require an additional charge, and standard features will vary in each community and subject change without notice. Call for details.
Read more about this plan
{"InvalidUserInputMessage":"Please check your data entered again","ServerErrorMessage":"We couldn't share this page via email, try again later","SuccessResultCode":0,"InvalidUserInputResultCode":1,"ServerErrorResultCode":2,"HostName":"http://www.drhorton.com","DefaultPageUrl":"https://www.drhorton.com/texas/dallas/sulphur-springs/stonewood-phase-1/floor-plans/1497","DefaultModalHeader":"Share this property."}
Facebook LinkedIn Email