Gardenia Floor Plan
Call for Information
| Express Series®
3 Bed |
2.5 Bath |
2 Garage |
2 Story
1,381 Sq. Ft.
About this floor plan
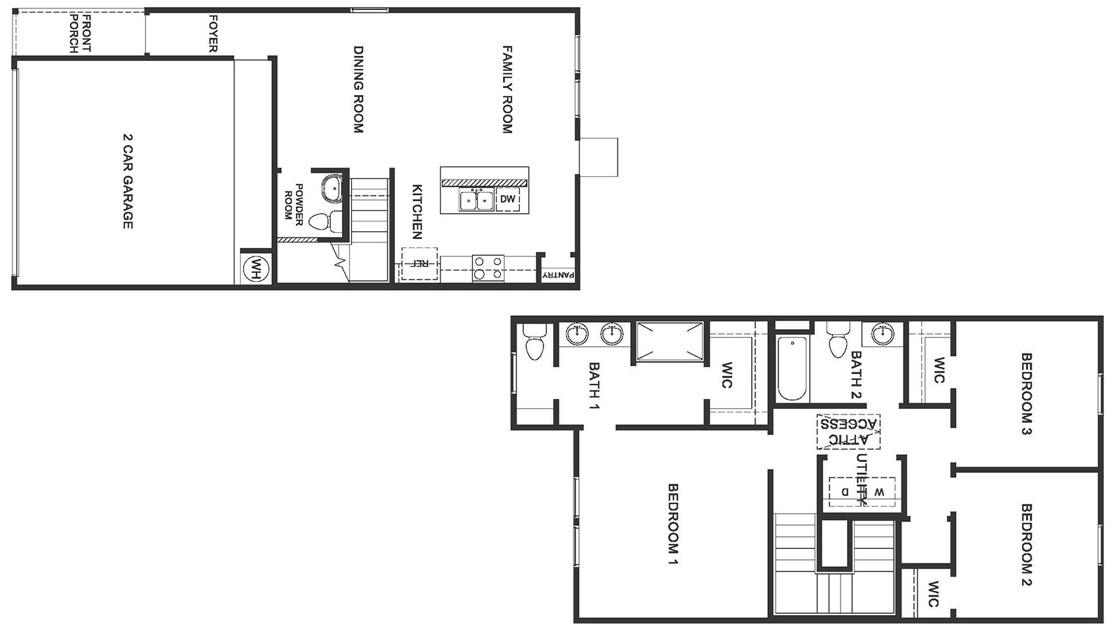
Welcome to the Gardenia floor plan, a beautifully designed two-story home in our Cool Water community in Jarrell, TX. This home spans approximately 1,381 square feet, complete with 3-bedroom, 2.5 bath, and a spacious two-car garage.
As you step inside, you're greeted by a welcoming front foyer that seamlessly flows into the open-concept dining, living, and kitchen area, perfect for family gatherings and entertaining guests. The kitchen features a stylish island, providing extra storage space and seating options for added convenience. Upstairs, you'll discover a well-designed layout starting with a dedicated laundry room that includes a shelf for additional storage. To the right of the staircase, two secondary bedrooms each come with their own walk-in closet, offering plenty of storage space. The secondary bathroom features a shower and tub combo and a one-sink vanity, designed for both comfort and practicality.
Further down the hallway, the primary bedroom awaits, located towards the front of the home for added privacy. The adjoining primary bathroom offers a two-sink vanity, a standing shower, and a spacious walk-in closet, ensuring you have all the room you need. Discover how the Gardenia can be the perfect place to call home. Contact us today to make it yours!
Read more about this plan
{"InvalidUserInputMessage":"Please check your data entered again","ServerErrorMessage":"We couldn't share this page via email, try again later","SuccessResultCode":0,"InvalidUserInputResultCode":1,"ServerErrorResultCode":2,"HostName":"http://www.drhorton.com","DefaultPageUrl":"https://www.drhorton.com/texas/killeen-temple-waco/jarrell/cool-water/floor-plans/v22g","DefaultModalHeader":"Share this property."}
Facebook LinkedIn Email