About this floor plan
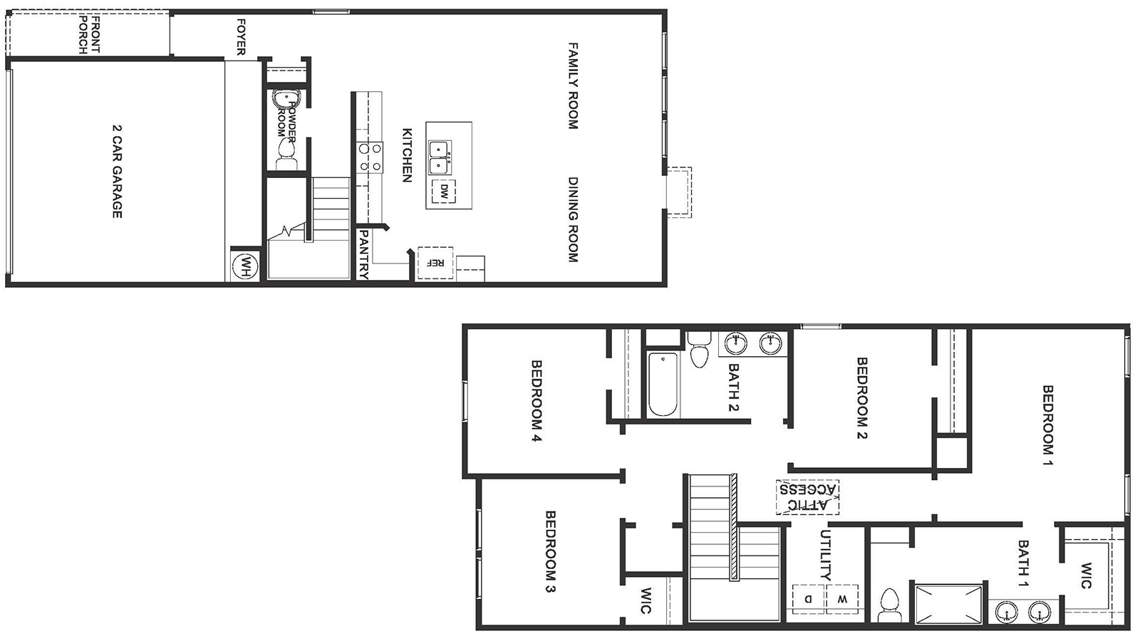
Explore the Jasmine floor plan, a spacious two-story home offering approximately 1,719 square feet of thoughtfully designed living space at our Cool Water community in Jarrell, TX. This inviting 4-bedroom, 2.5 bathroom, and a two-car garage blends comfort, style, and functionality. As you enter the home, you're greeted by a charming front foyer that leads into the open-concept dining, living, and kitchen area, perfect for modern living and entertaining. The kitchen is a highlight, featuring a large island for additional storage and seating, as well as a walk-in pantry for added convenience. The living and dining areas are flooded with natural light, thanks to three large windows and a door that leads directly to the backyard, offering an easy flow between indoor and outdoor spaces. Just off the living area, you'll find a convenient powder room for guests.
As you head upstairs, the second story reveals a functional layout that suits families of all sizes. To the left, you'll find two spacious secondary bedrooms. One bedroom features two windows and a walk-in closet, while the other room offers a single window and a closet. In front of the staircase is the secondary bathroom, which includes a dual-sink vanity and a standing tub, perfect for relaxing or sharing with family. Further down the hallway, there is another secondary room with its own closet, providing flexible space for a home office or additional bedroom. The laundry room is conveniently located across the hall, making laundry tasks easier and more efficient. At the back of the home, the private primary bedroom provides a peaceful retreat with two large windows that offer plenty of natural light. The attached primary bathroom features a dual-sink vanity, a walk-in shower, and a spacious walk-in closet, offering both luxury and functionality. The Jasmine floor plan strikes the perfect balance of style, comfort, and practicality, making it the ideal home for your family. Don’t miss out on the opportunity to make the Jasmine your new home today!
Read more about this plan
Facebook LinkedIn Email