About this floor plan
Excited to talk new homes?
Text with us
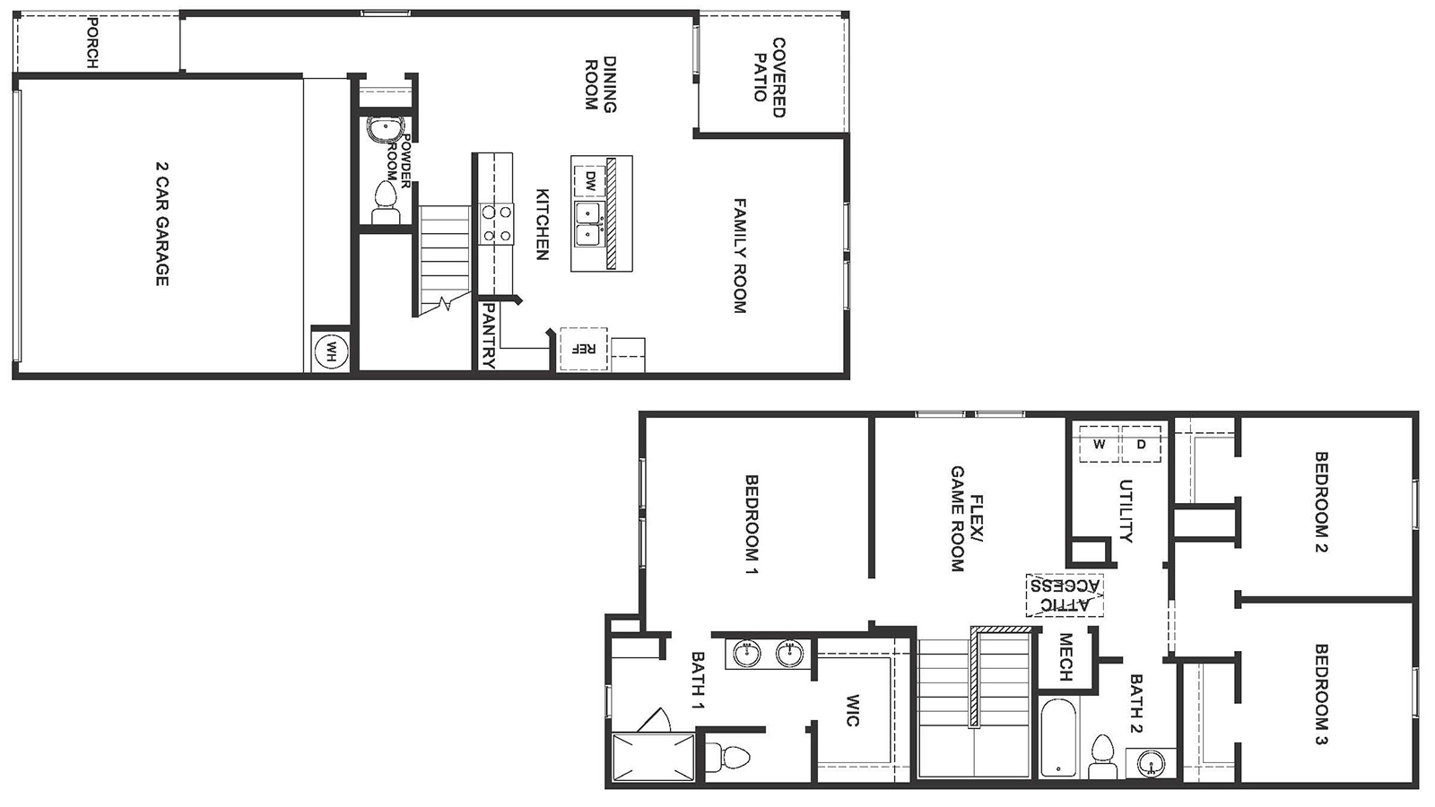
Come and experience the charm of the Iris floorplan at Cool Water, a stunning two-story home in Jerrell, Texas, offering approximately 1,588 square feet of thoughtfully designed living space, complete with a spacious two-car garage. As you enter, you're greeted by the open-concept dining and kitchen area, where the kitchen features a large island that provides additional seating and storage, making it the heart of the home. The living room is located just off the kitchen, offering plenty of natural light with three large windows that look out to the backyard.
Upstairs, the Iris floor plan provides ample living space with a spacious game room, ideal for family fun or additional entertainment. To the left of the game room is the primary bedroom, featuring two large windows that allow plenty of natural light. The attached primary bathroom includes a dual-sink vanity and a standing shower, offering both style and functionality. A generous walk-in closet is conveniently located just off the primary bathroom for extra storage space. Walking further down the hallway, you'll find the laundry room to the left, and the secondary bathroom to the right. The bathroom includes a single-sink vanity and a standing tub. At the end of the hallway, you’ll find two secondary bedrooms, each with their own walk-in closet, offering plenty of space for storage and personalization. The Iris floor plan combines spacious living areas, modern design, and smart functionality, making it the perfect home for families. Don’t miss out on the opportunity to make the Iris your new dream home!
Read more about this plan
Facebook LinkedIn Email