About this floor plan
Excited to talk new homes?
Text with us
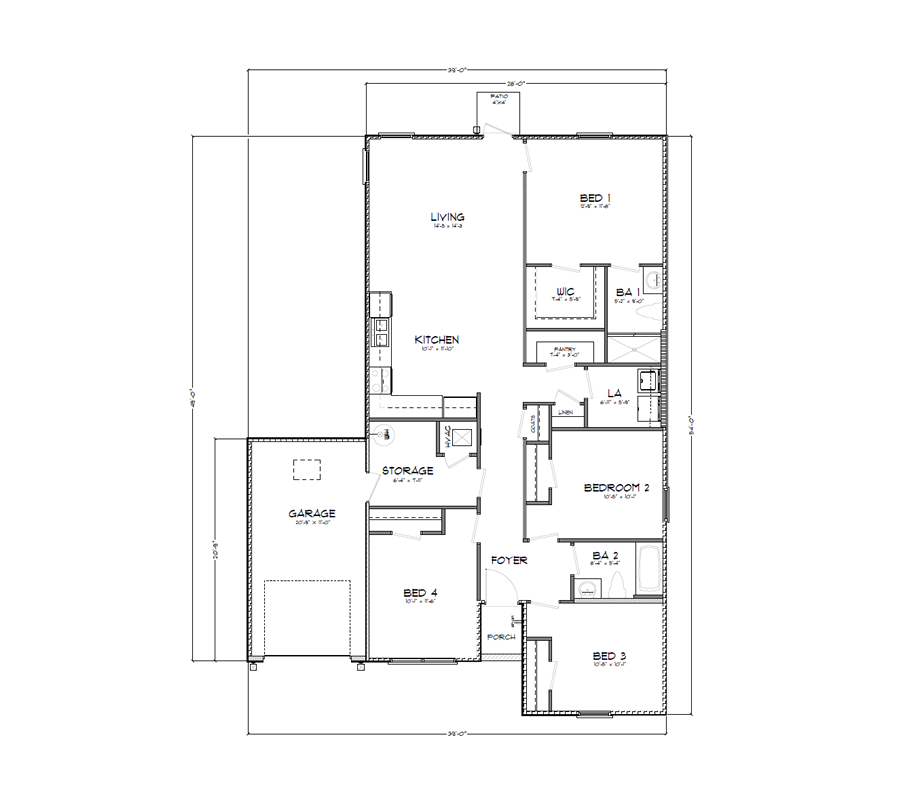
Introducing the Sebastian, a beautiful single-story floor plan in Reserve at Brookhaven, located in Cantonment, FL! Boasting 1,667 square feet of thoughtfully planned living space, the Sebastian offers 4 spacious bedrooms and 2 well-appointed bathrooms. Upon entry, you’re greeted by a welcoming foyer that flows into an open-concept living area, seamlessly connecting the kitchen, dining, and great room – perfect for both everyday living and entertaining. The chef-inspired kitchen is a highlight of the home, featuring stylish shaker-style cabinetry, sleek stainless-steel appliances, luxurious countertops, and a pantry for extra storage. With ample counter space, it’s ideal for preparing meals and hosting guests.
Tucked away for privacy, the spacious primary bedroom includes a large walk-in closet and an ensuite bathroom. The three additional bedrooms are generously sized and versatile – great for children, guests, or even a home office. These bedrooms share a conveniently located full bathroom, featuring a tub and shower combination. Step outside to the backyard, where you’ll find plenty of room for relaxation or outdoor entertaining. The front yard is beautifully landscaped, with a charming pathway leading you to the front door, adding to the home's curb appeal. Equipped with Smart Home Connect Technology, this home includes a video doorbell, keyless entry lock, programmable thermostat, touchscreen control device, and smart light switches, offering both convenience and peace of mind. Plus, with a 1-year builder warranty and a 10-year structural warranty, your home is well-protected. Don’t miss out on making the Sebastian your home sweet home – contact us today to schedule a tour at Reserve at Brookhaven!
Read more about this plan
Facebook LinkedIn Email