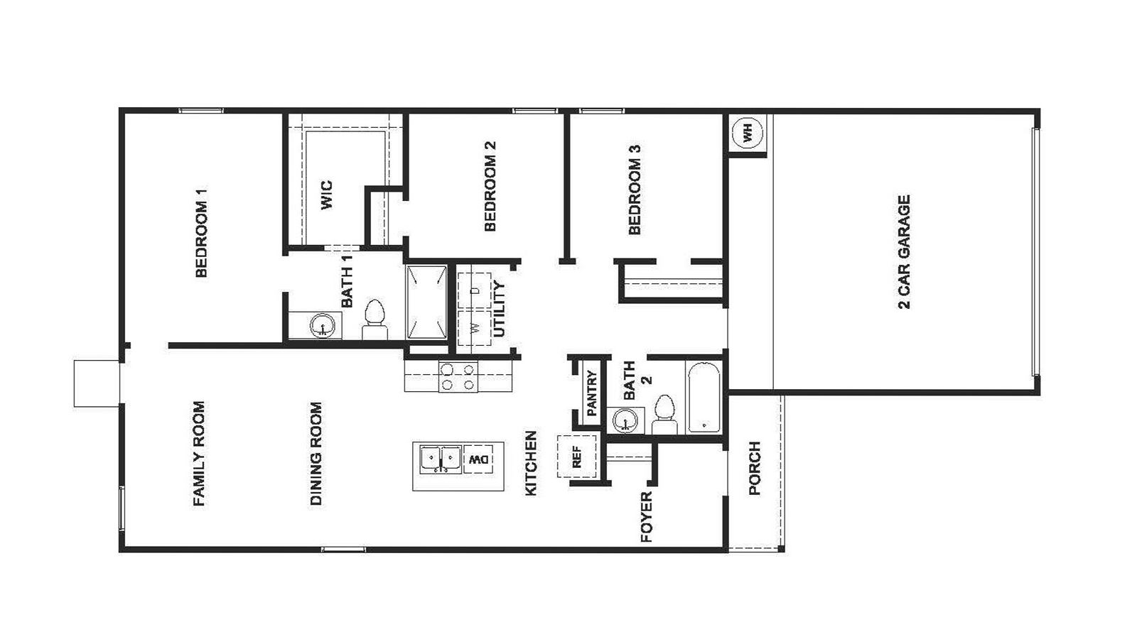
Atlanta Floor Plan
Call for Information
| Express Series®
3 Bed |
2 Bath |
2 Garage |
1 Story
1,156 Sq. Ft.
About this floor plan
Excited to talk new homes?
Text with us
Welcome to the Atlanta, a beautifully designed one-story home in Reynolds Crossing community in Killeen, TX. Offering approximately 1,156 sq. ft., this thoughtfully crafted 3-bedroom, 2-bath layout is the perfect blend of comfort, style, and functionality. As you step through the foyer, you’ll find a convenient coat closet before entering the open-concept heart of the home – the kitchen and family room. The kitchen features a spacious island, stainless steel appliances, and plenty of counter space for both meal prep and casual dining. Just off the kitchen are two secondary bedrooms and a secondary bathroom, with easy access to the laundry room.
Natural light fills the living room from large rear-facing windows, creating a warm and inviting space for relaxing or entertaining. Tucked away off the living room, the primary bedroom offers a peaceful retreat, complete with a walk-in shower and walk-in closet for plenty of storage space. Every D.R. Horton home has smart home technology built in. Feel connected as you control and secure your home through the Qolsys smart panel, through your phone, or even with your voice. Discover how the Atlanta can be the perfect place to call home. Contact us today to make it yours at Reynolds Crossing.
Read more about this plan
{"InvalidUserInputMessage":"Please check your data entered again","ServerErrorMessage":"We couldn't share this page via email, try again later","SuccessResultCode":0,"InvalidUserInputResultCode":1,"ServerErrorResultCode":2,"HostName":"http://www.drhorton.com","DefaultPageUrl":"https://www.drhorton.com/texas/killeen-temple-waco/killeen/reynolds-crossing/floor-plans/t30a","DefaultModalHeader":"Share this property."}
Facebook LinkedIn Email