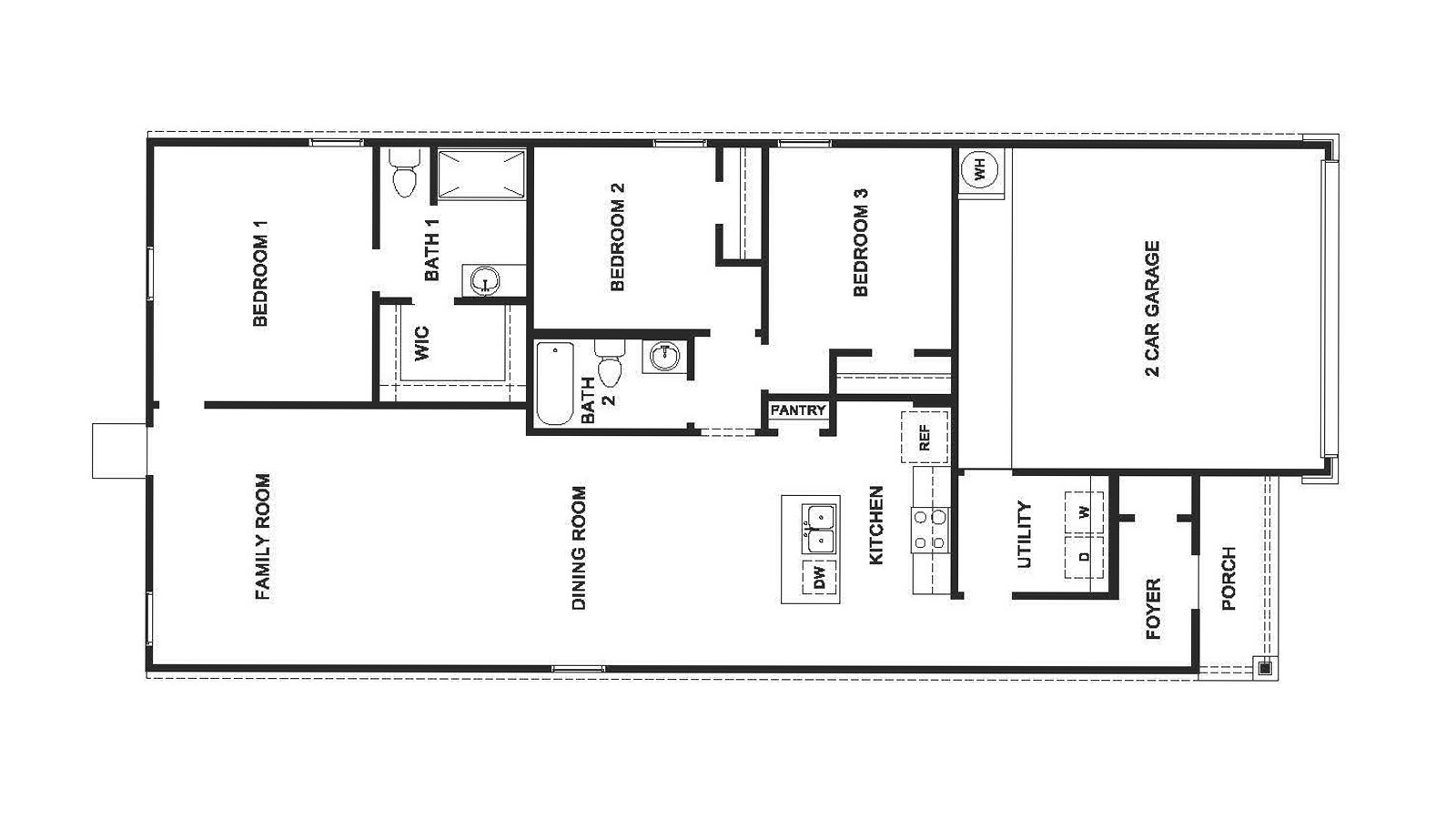
Caprock Floor Plan
Call for Information
| Express Series®
3 Bed |
2 Bath |
2 Garage |
1 Story
1,434 Sq. Ft.
About this floor plan
Excited to talk new homes?
Text with us
Come and experience the charm of the Caprock floorplan at Reynolds Crossing, a stunning single-story home with a 2-car garage in Killeen, Texas, that’s everything you’ve been looking for. This thoughtfully designed 3-bedroom, 2-bathroom home offers approximately 1,434 square feet of well-used space. The open-concept layout connects the kitchen, dining, and living areas seamlessly, creating a warm and welcoming space perfect for both everyday living and entertaining guests. Stepping into the entrance of the house and into the foyer, you’ll find the laundry room conveniently located just off the kitchen. The kitchen itself is a chef’s delight, featuring a spacious island, stainless steel appliances, and ample counter space. Two secondary bedrooms and a secondary bathroom are situated just off the kitchen.
Situated off the living room at the back of the home, the primary bedroom provides a peaceful retreat, complete with a primary bathroom that has a walk-in shower, and a spacious walk-in closet. Every D.R. Horton home is equipped with our smart home technology, adding convenience and peace of mind to your daily life. Contact us today to make the Caprock your new home at Reynolds Crossing!
Read more about this plan
{"InvalidUserInputMessage":"Please check your data entered again","ServerErrorMessage":"We couldn't share this page via email, try again later","SuccessResultCode":0,"InvalidUserInputResultCode":1,"ServerErrorResultCode":2,"HostName":"http://www.drhorton.com","DefaultPageUrl":"https://www.drhorton.com/texas/killeen-temple-waco/killeen/reynolds-crossing/floor-plans/t30c","DefaultModalHeader":"Share this property."}
Facebook LinkedIn Email