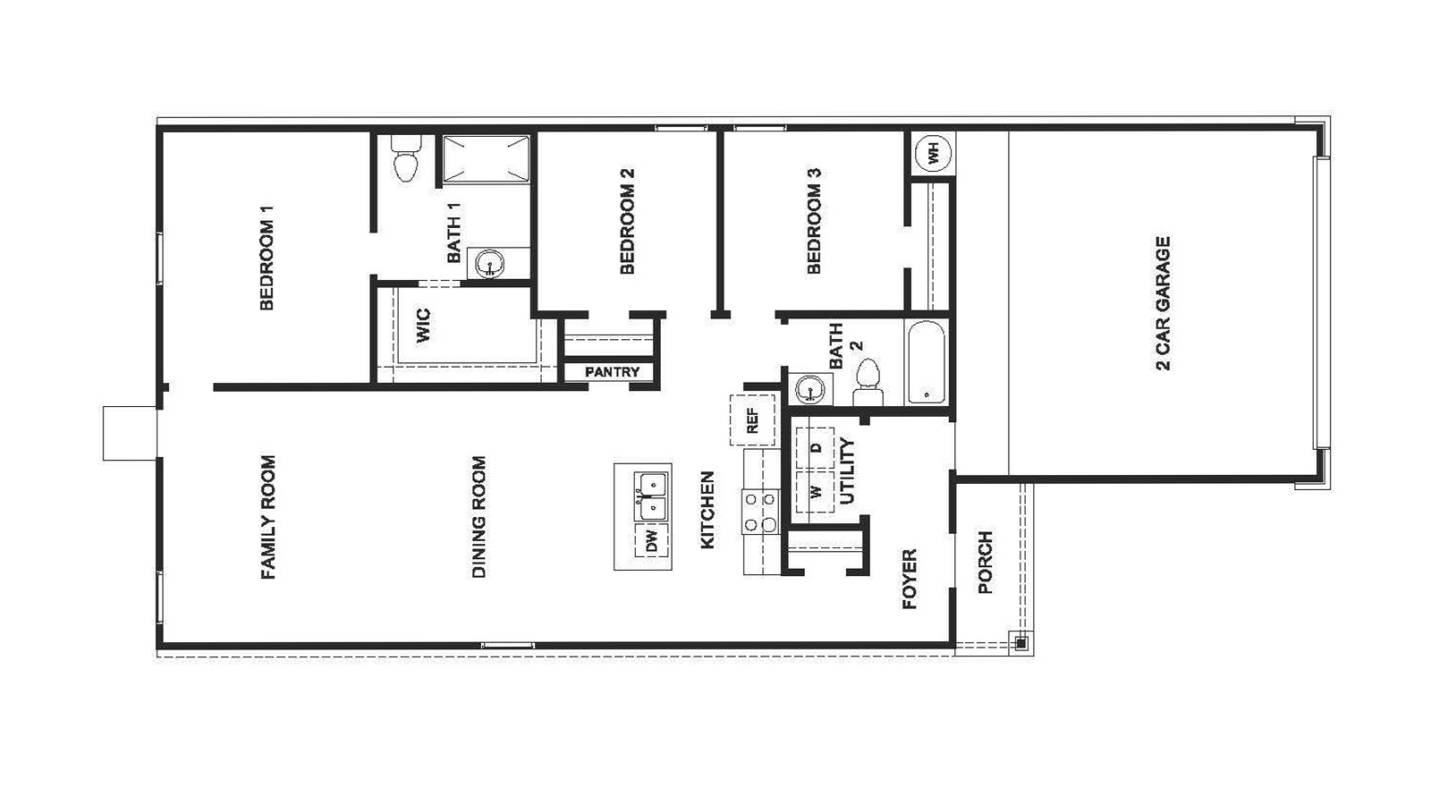
Barton Floor Plan
Call for Information
| Express Series®
3 Bed |
2 Bath |
2 Garage |
1 Story
1,280 Sq. Ft.
About this floor plan
Excited to talk new homes?
Text with us
Discover the Barton – a thoughtfully designed one-story floorplan in Reynolds Crossing community in Killeen, TX. This inviting 3-bedroom, 2-bathroom home offers approximately 1,280 sq. ft. of comfortable living space with an open-concept layout that’s perfect for both everyday living and entertaining. From the moment you step inside, you’ll appreciate the welcoming ambiance and stylish features throughout. The heart of the home is the spacious kitchen, showcasing a large island, sleek stainless steel appliance, and plenty of room to gather. Just off the kitchen are two secondary bedroom and a full secondary bath.
Tucked away near the back of the home, the private primary bedroom offers a peaceful retreat with its attached bathroom and a walk-in closet for all your storage needs. A 2-car garage provides ample space for vehicles and extra belongings, while built-in smart home technology ensures modern convenience at your fingertips. Make the Barton your new home and enjoy life in a community designed for comfort, style, and connection. Contact us today to learn more about living in Reynolds Crossing.
Read more about this plan
{"InvalidUserInputMessage":"Please check your data entered again","ServerErrorMessage":"We couldn't share this page via email, try again later","SuccessResultCode":0,"InvalidUserInputResultCode":1,"ServerErrorResultCode":2,"HostName":"http://www.drhorton.com","DefaultPageUrl":"https://www.drhorton.com/texas/killeen-temple-waco/killeen/reynolds-crossing/floor-plans/t30b","DefaultModalHeader":"Share this property."}
Facebook LinkedIn Email