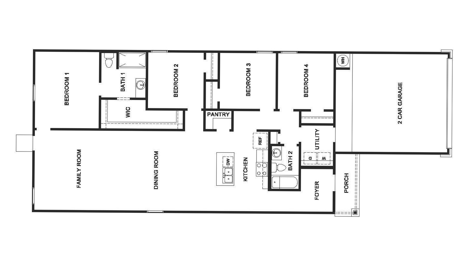
Estero Floor Plan
Call for Information
| Express Series®
4 Bed |
2 Bath |
2 Garage |
1 Story
1,572 Sq. Ft.
About this floor plan
Excited to talk new homes?
Text with us
Introducing the Estero, a beautifully designed one-story home in Reynolds Crossing community in Killeen, TX. With approximately 1,572 sq. ft. of carefully planned living space, this 4-bedroom, 2-bath floorplan is perfect for any stage of life. Step inside and be greeted by the open-concept heart of the home – the kitchen and family room. The kitchen boasts a spacious island, sleek stainless-steel appliances, and generous counter space, ideal for everything from meal prep to casual to dining. Just beyond, you’ll find the inviting secondary bedrooms and secondary bathroom, all conveniently situated near the laundry room for easy daily living.
Large rear-facing windows flood the family room with natural light, creating a warm and inviting space for relaxing or entertaining. Tucked away for privacy, the primary bedroom offers a peaceful retreat complete with an attached bathroom that features a walk-in shower and a spacious walk-in closet, providing plenty of storage for your essentials. Every D.R. Horton home includes built-in smart home technology, keeping you connected and in control with the Qolsys smart panel – accessible from your phone or even by voice. The Estero isn’t just a house-it’s a place you’ll love to call home. Contact us today to make it yours at Reynolds Crossing.
Read more about this plan
{"InvalidUserInputMessage":"Please check your data entered again","ServerErrorMessage":"We couldn't share this page via email, try again later","SuccessResultCode":0,"InvalidUserInputResultCode":1,"ServerErrorResultCode":2,"HostName":"http://www.drhorton.com","DefaultPageUrl":"https://www.drhorton.com/texas/killeen-temple-waco/killeen/reynolds-crossing/floor-plans/t30e","DefaultModalHeader":"Share this property."}
Facebook LinkedIn Email