Pearson Interior Unit Plan
Express Series
® |
Call for Information
3 Bed |
2.5 Bath |
1 Garage |
2 Story
1,464 Sq. Ft.
About this floorplan
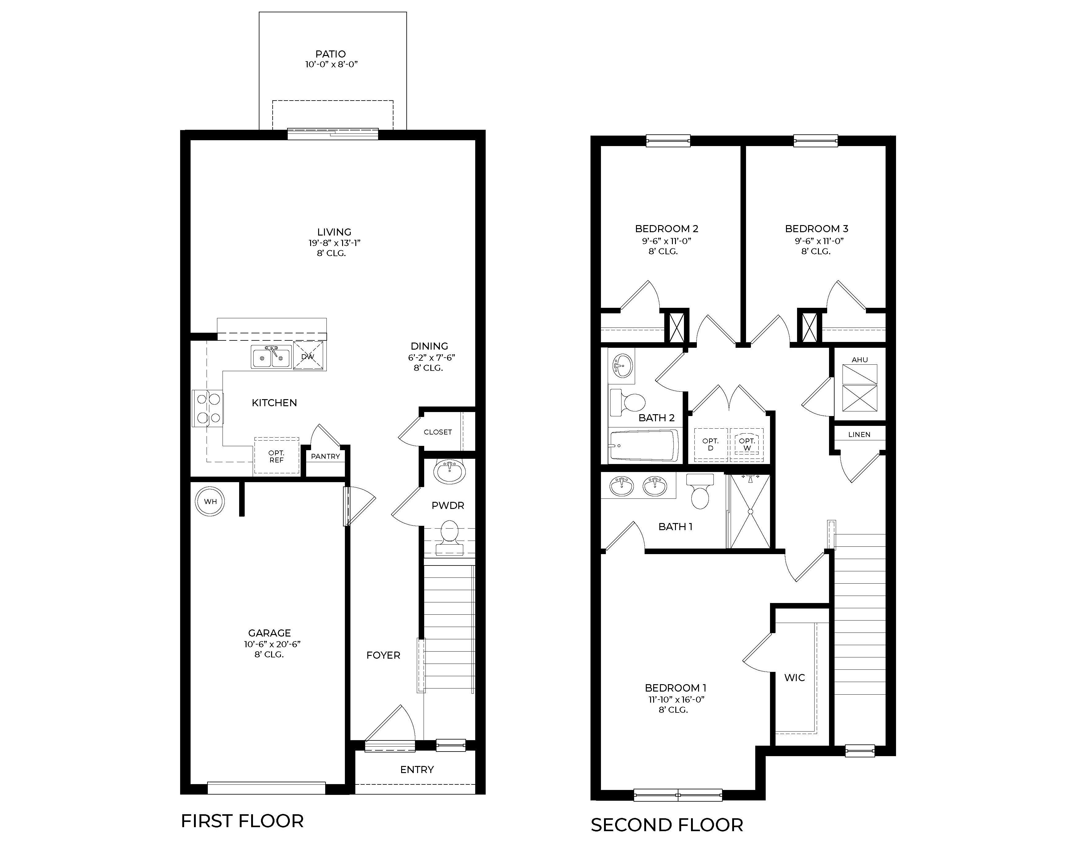
The Pearson townhome combines style, functionality, and modern finishes in a layout designed for today’s lifestyle. Offering 3 bedrooms, 2.5 baths, and 1,464 square feet of living space, this home is perfect for families, professionals, or anyone seeking low-maintenance living with high-quality design. On the first floor, an inviting foyer opens into a spacious living and dining area that flows seamlessly into the kitchen. The kitchen features quartz countertops, stainless steel appliances, and a convenient pantry, making it both practical and elegant. A private patio extends your living space outdoors, perfect for relaxing or entertaining.
Upstairs, the primary suite offers a peaceful retreat with a large walk-in closet and private bath. Two additional bedrooms and a second full bath provide comfortable space for family or guests, while an upstairs laundry area adds everyday convenience. Throughout the home, luxury vinyl plank flooring in the main living and wet areas adds both durability and style, creating a modern, low-maintenance finish you’ll love. With its thoughtful design and timeless details, the Pearson is a place you’ll be proud to call home.
Read more about this plan
Request information
{"InvalidUserInputMessage":"Please check your data entered again","ServerErrorMessage":"We couldn't share this page via email, try again later","SuccessResultCode":0,"InvalidUserInputResultCode":1,"ServerErrorResultCode":2,"HostName":"http://www.drhorton.com","DefaultPageUrl":"https://www.drhorton.com/florida/east-florida/fort-pierce/creekside/floor-plans/t20b","DefaultModalHeader":"Share this property."}
Facebook LinkedIn Email